• +49 172 6666014
  • Diese E-Mail-Adresse ist vor Spambots geschützt! Zur Anzeige muss JavaScript eingeschaltet sein.

Immobilien

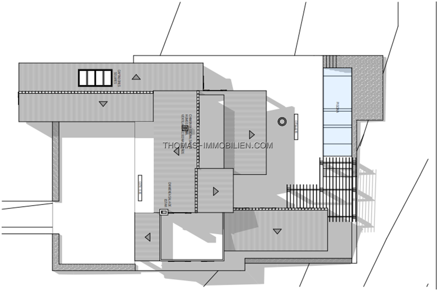
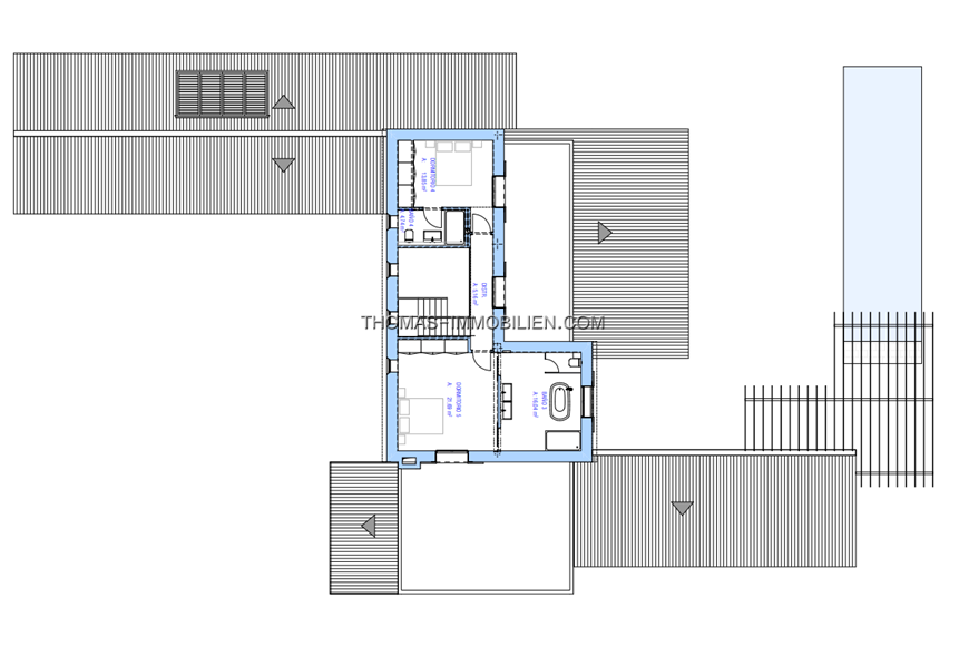
Neubau Projekt Finca in Alcudia auf einem Grundstück von 43.796 m²

REF.NR: 180-c1475
Merken Drucken

Objektinformationen

Kaufpreis:
1'500'000,00 €
Käuferprovision:
Provisionsfrei für den Käufer
Wohnfläche ca.:
473,00 m²
Grundstück:
43'796,00 m²
Zimmer:
6,0
Schlafzimmer:
5
Badezimmer:
4
Interne Nummer
180-1386
Externe Nummer
180-c1475
OIOBID
180-1386
Stand:
10.11.2024
Sprache
de
Swimmingpool
Neubau

Verwaltung



Objektbeschreibung

VILLA PROJEKT IM BAU IN EINER RUHIGEN GEGEND VON ALCUDIA, MALLORCA.

Finca im Bau mit den besten Oberflächen zum Verkauf in Alcudia, Mallorca.
Diese Villa vereint Design und Komfort in Perfektion. Willkommen in dieser Villa, eine einzigartige Gelegenheit, eine Villa im Bau in prestigeträchtigen Bereich, Alcudia, Mallorca, in einem großzügigen Grundstück von 43.796 m² zu erwerben. Diese Immobilie verbindet architektonische Eleganz mit modernem Komfort und bietet eine luxuriöse und ruhige Umgebung. Herausragende Merkmale: Panoramablick: Genießen Sie den ungehinderten Blick auf die Umgebung, der eine ruhige und spektakuläre Umgebung schafft. Großes Grundstück: Die Immobilie befindet sich auf einem 43.796 m² großen Grundstück und bietet Privatsphäre und Raum, um die Natur zu genießen. Bebaute Fläche: Mit einer bebauten Fläche von 473 m² verfügt die Villa über ein helles und modernes Design. Weitläufiger Garten: Umgeben von einem großen Garten, bietet das Anwesen eine Oase der Ruhe und Möglichkeiten zur Unterhaltung im Freien. Großer Swimmingpool: Tauchen Sie ein in den Luxus eines großen Swimmingpools, der für Momente der Entnung und des Vergnügens gedacht ist. Maßgeschneiderte Optionen: Sie haben die Möglichkeit, während der Bauphase einige Wünsche zu äußern, damit Ihr Haus zu 100 % maßgeschneidert ist. Gutes Preis-Leistungs-Verhältnis: Diese Villa zeichnet sich durch ihr hervorragendes Preis-Leistungs-Verhältnis aus und bietet eine einzigartige Gelegenheit auf dem Markt. Garage: Geräumig für mindestens 2 Autos. Entdecken Sie das perfekte Gleichgewicht zwischen Stil, Komfort und Wert in dieser im Bau befindlichen Villa. Kontaktieren Sie uns für weitere Details und entdecken Sie, wie Sie diese Immobilie zu Ihrem neuen Zuhause auf der schönen Insel Mallorca machen können!



Please publish modules in offcanvas position.