• +49 172 6666014
  • Diese E-Mail-Adresse ist vor Spambots geschützt! Zur Anzeige muss JavaScript eingeschaltet sein!
Was suchen Sie?
Kaufpreis
×
Grundstücksfläche
×

Neubau Wohnanlage mit Doppelhaushälften und Bungalows in Los Balcones, Torrevieja mit Blick auf den rosa See, Spanien

03180 Torrevieja Spanien Alicante
REF.NR: 4-27-N6848
MerkenZurück Drucken

Objektinformationen

Kaufpreis:
305.000,00 €
Käuferprovision:
Provisionsfrei für den Käufer
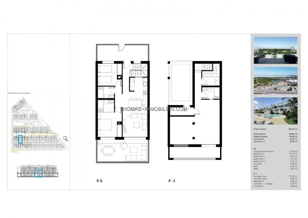
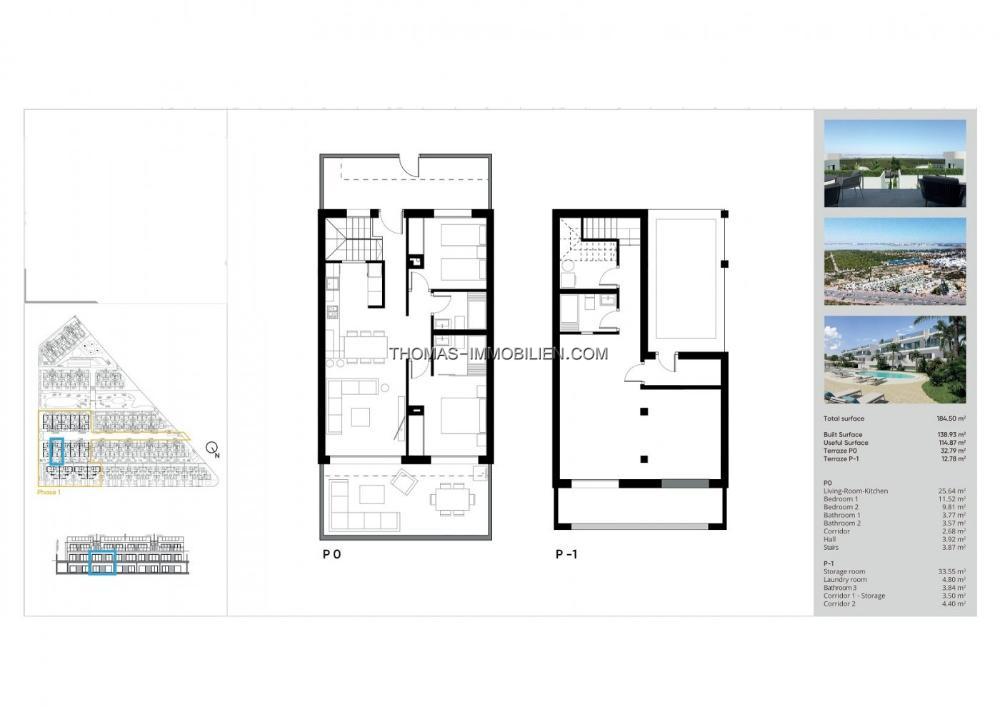
Wohnfläche ca.:
75,00 m²
Grundstück:
0,00 m²
Schlafzimmer:
2
Badezimmer:
2
Referenznummer
4-27-N6848
Swimmingpool
mit Meerblick
Neubau


Objektbeschreibung

NEUBAU WOHNANLAGE IN LOS BALCONES, TORREVIEJA Neubau Wohnanlage mit Doppelhaushälften und Bungalows in Los Balcones mit Blick auf den rosa See. Neubau Bungalows im obersten Stockwerk mit 2 Schlafzimmern, 2 Bädern, offener Küche mit geräumigem Wohnzimmer, Einbauschränken, Terrasse, privatem Solarium und Tiefgaragenstellplatz. Neue exklusive Wohnanlage mit großen Gemeinschaftsbereichen; Gärten, Garten-Turnhalle, Spielplatz, 2 große Gemeinschaftspools - einer davon für Erwachsene und der andere für Kinder. Los Balcones ist eine kleine Stadt in der Nähe von Torrevieja Süd. Torrevieja ist eine spanische Stadt in der Provinz Alicante, an der Costa Blanca. Sie ist bekannt für ihr typisch mediterranes Klima und ihre Küstenlinie. Entlang der Sandstrände gibt es Strandpromenaden mit Ferienanlagen. Das kleine Meeres- und Salzmuseum beherbergt Ausstellungen über die Fischerei- und Salzgeschichte der Stadt. Im Landesinneren befindet sich der Naturpark Lagunas de La Mata-Torrevieja mit Wanderwegen und zwei salzhaltigen Lagunen, von denen eine rosa und die andere grün ist. Der Flughafen Alicante ist 40 Minuten und der Flughafen Murcia etwa 1 Stunde entfernt.

Regionale Lage:

Kontaktformular