• +49 172 6666014
  • Diese E-Mail-Adresse ist vor Spambots geschützt! Zur Anzeige muss JavaScript eingeschaltet sein!
Was suchen Sie?
Kaufpreis
×
Grundstücksfläche
×

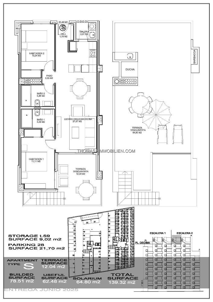
Neubau-Wohnanlage bestehend aus einem 9-stöckiges Gebäude von 60 Wohnungen und Penthäuser mit 2 und 3 Schlafzimmern in Guardamar, Spanien

03140 Guardamar Spanien Alicante
REF.NR: 4-28-REDSP-23036
MerkenZurück Drucken

Objektinformationen

Kaufpreis:
285.000,00 €
Käuferprovision:
Provisionsfrei für den Käufer
Wohnfläche ca.:
78,00 m²
Schlafzimmer:
2
Badezimmer:
2
Referenznummer
4-28-REDSP-23036
Swimmingpool
Neubau


Objektbeschreibung

NEU GEBAUTE WOHNANLAGE IN GUARDAMAR DEL SEGURA

Neubau-Wohnanlage ist ein 9-stöckiges Gebäude von 60 Wohnungen und Penthäuser mit 2 und 3 Schlafzimmern, alle haben eine offene Küche mit geräumigem Wohnzimmer, Einbauschränke, Terrasse, in Guardamar del Segura gelegen.
Der Komplex verfügt über große Gemeinschaftsgartenflächen und einen Gemeinschaftspool, Parkplätze im Keller und Abstellräume im Preis inbegriffen.
Die Wohnanlage befindet sich nur einen Steinwurf vom Yachthafen und 600 Meter vom Strand "Los Viveros" entfernt.
Das Gebäude ist in einem modernen und hellen Stil gehalten und folgt einer linearen Architektur. Die offenen und miteinander verbundenen Räume sind charakteristisch für die Konstruktion des Wohnkomplexes und ermöglichen die Schaffung verschiedener Atmosphären im Haus.
Die Konstruktion des Komplexes ist mit den besten Qualitäten durchgeführt, und hat auch große Terrassen und Solarium, alle Eigenschaften haben eine Garage und Abstellraum im Preis inbegriffen, und unschlagbare Ansichten.
Guardamar del Segura liegt in der Provinz Alicante, in der Sie ein typisch mediterranes Klima und eine mediterrane Landschaft genießen können, mit wenig Niederschlag das ganze Jahr über und einer Durchschnittstemperatur zwischen 18ºC und 19ºC.
Guardamar del Segura ist bekannt für seine Gastronomie, die sich durch Qualitätsprodukte aus dem Meer und aus dem nahe gelegenen Gemüsegarten auszeichnet.
Endlose Sandstrände, an denen man spazieren gehen und das Sonnenlicht und die schönsten Sonnenuntergänge genießen kann.
Die Nähe zum Flughafen Alicante macht sie zu einer der attraktivsten Städte an der Mittelmeerküste für Touristen.

Regionale Lage:

Kontaktformular