• +49 172 6666014
  • Diese E-Mail-Adresse ist vor Spambots geschützt! Zur Anzeige muss JavaScript eingeschaltet sein!
Was suchen Sie?
Kaufpreis
×
Grundstücksfläche
×

Neubauprojekt bestehend aus 12 Wohnungen und 2 Penthäusern - alle mit großen Terrassen in Torrevieja, Spanien

03181 Torrevieja Spanien Alicante
REF.NR: 4-28-REDSP-68085
MerkenZurück Drucken

Objektinformationen

Kaufpreis:
493.500,00 €
Käuferprovision:
Provisionsfrei für den Käufer
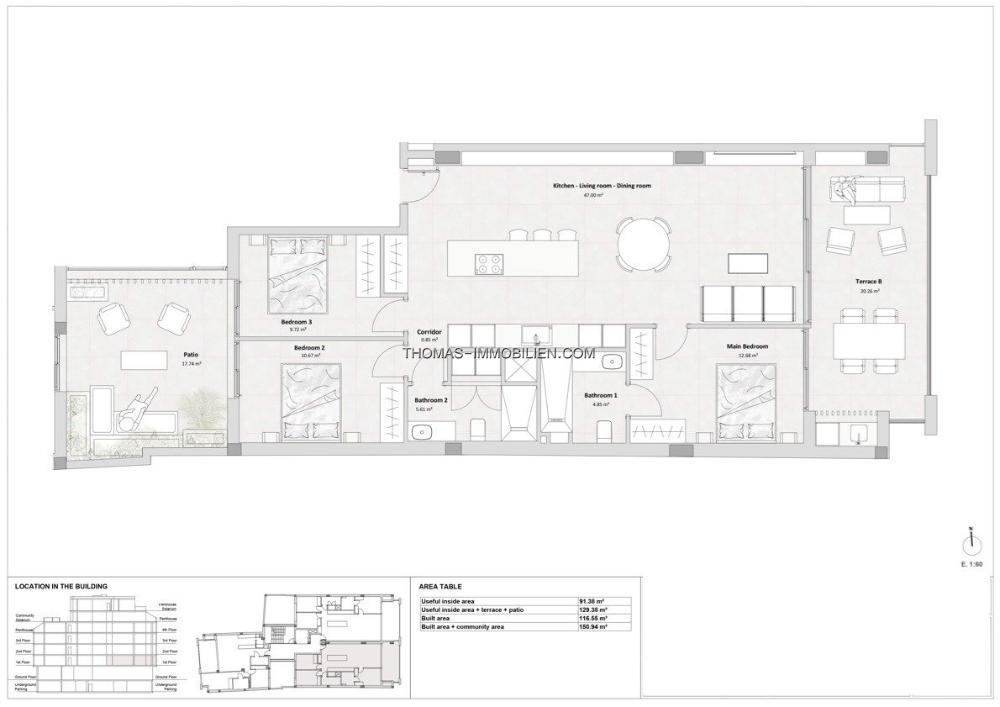
Wohnfläche ca.:
91,00 m²
Schlafzimmer:
3
Badezimmer:
2
Referenznummer
4-28-REDSP-68085
Swimmingpool
mit Meerblick
Neubau


Objektbeschreibung

NEUBAU WOHNUNGEN IN ERSTER LINIE IN LA MATA

Neubauwohnungen in La Mata, Torrevieja.
Das Neubauprojekt besteht aus 12 Wohnungen und 2 Penthäusern - alle mit großen Terrassen, zwei Geschäftsräumen im Erdgeschoss und 11 Tiefgaragenplätzen.
Zum Projekt gehört auch eine große gemeinsame Dachterrasse mit Jacuzzi und Blick auf den natürlichen Salzsee in westlicher Richtung.
Die Wohnungen mit 3 Schlafzimmern und 2 Bädern, offener Küche und Wohnbereich, Einbauschränken und direktem Blick auf den Stadtplatz, den Strand und das Meer.
Die Penthouse-Wohnungen haben auch direkten Zugang zu ihrer eigenen privaten Dachterrasse von 80 m2, mit Panoramablick.
Sie können wählen, ob Sie einen der 11 Stellplätze in der Tiefgarage erwerben möchten.
La Mata liegt in der Nähe der spanischen Stadt Torrevieja in der Provinz Alicante, an der Costa Blanca.
Sie ist bekannt für ihr typisch mediterranes Klima und ihre Küstenlinie. Entlang der Sandstrände gibt es Strandpromenaden mit Ferienanlagen.
Der Strand La Mata ist der längste Strand von Torrevieja und ist von Siedlungen umgeben. Er befindet sich in der Nähe des Parks Molino del Agua.
Das kleine Meeres- und Salzmuseum beherbergt Ausstellungen über die Fischerei- und Salzgeschichte der Stadt.
Im Landesinneren befindet sich der Naturpark Lagunas de La Mata-Torrevieja mit Wanderwegen und zwei salzhaltigen Lagunen, von denen eine rosa und die andere grün ist.
Der Flughafen Alicante ist 40 Minuten und der Flughafen Murcia etwa 1 Stunde entfernt.

Regionale Lage:

Kontaktformular