• +49 172 6666014
  • Diese E-Mail-Adresse ist vor Spambots geschützt! Zur Anzeige muss JavaScript eingeschaltet sein!
Was suchen Sie?
Kaufpreis
×
Grundstücksfläche
×

Neue Villa im einzigartigern modernen Baustil mit Pool in Calpe an der Costa Blanca

03710 Calpe Spanien Alicante
REF.NR: 4-48-HD2LEO
MerkenZurück Drucken

Objektinformationen

Kaufpreis:
1.125.000,00 €
Käuferprovision:
Provisionsfrei für den Käufer
Wohnfläche ca.:
303,00 m²
Grundstück:
922,00 m²
Schlafzimmer:
4
Badezimmer:
4
Referenznummer
4-48-HD2LEO
Swimmingpool
Neubau


Objektbeschreibung

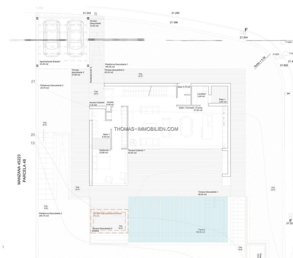
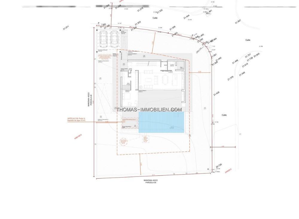
SCHLÜSSEL BEREIT. Villa Leonidas, einzigartiger moderner Baustil mit innovativen und avantgardistischen Linien, entworfen vom bekannten Architekten Ramón Gandía Brull, in der Urbanisation Enginent in der Nähe von Restaurants und nur wenige Gehminuten von Strand, Supermärkten usw. entfernt, moderner Neubau Villa zu verkaufen in Calpe an der Costa Blanca von Alicante, moderne Villa mit privatem Infinity-Pool (10,5 x4), Grill und Garten, gebaut auf einem 922m2 großen Grundstück, 303 m2 auf zwei Etagen gebaut, die durch eine Innentreppe verbunden sind, 4 Schlafzimmer mit Bad Badezimmer, 1 WC, Wohnzimmer mit offener amerikanischer Küche mit BOSCH-Geräten (Kühlschrank, Waschmaschine, Geschirrspüler, Backofen, Herd, Dunstabzugshaube und Mikrowelle).

Fußbodenheizung mit Wärmepumpe, Temperaturregelung mit SIME Gasboiler mit 55L Speicher und 2450L Gastank

Klimaanlage durch im DAIKIN-Haus verteilte Kanäle

Auf der unteren Ebene befindet sich Ihr geräumiges Wohn- / Esszimmer, verbunden mit der Küche mit einer zentralen Insel, alle offen zur Terrasse mit Pool, Garten und Grillplatz. Auf dieser Ebene finden Sie 1 Schlafzimmer mit eigenem Ankleideraum und Badezimmer.

Auf der oberen Ebene finden wir 3 Schlafzimmer mit Bad en Suite mit Zugang zur überdachten Terrasse.

Ein außergewöhnliches Haus, das die gesamte Ausstattung einer erstklassigen Residenz enthält, ein exklusives Anwesen in der schönen Stadt Calpe, ganz in der Nähe von Restaurants und nicht weit vom Strand, Supermärkten usw.

Calpe, umgeben von den Gemeinden Altea, Benidorm, Moraira und Benissa, ist eine kosmopolitische und moderne Stadt nördlich der Costa Blanca. Der Tourismus ist im Mittelmeerraum wegen der hohen Qualität seiner Dienstleistungen und Produkte ein beliebtes Reiseziel.

Ist einer der exklusivsten und angenehmsten Orte, um Ihr Haus an der Costa Blanca zu kaufen.

Ist ein Fischerdorf mit 13 km Küste, die vom Mittelmeer unter dem Schatten des Peñón de Ifach umgeben ist. Der Felsen von Ifach wurde 1987 zum Naturpark erklärt.

Hat mehr als 5 km. von schönen Klippen: der Peñón de Ifach, Toix, La Manzanera, sowie schöne und ruhige Buchten, Les Bassetes, Mallorquí, Calalga, Morelló, Penyal, El Racó, Cantal Roig, La Manzanera, Puerto Blanco, Les Urques, Gasparet und der Racó del Corv und seine zwei Hauptstrände aus feinem Sand, der Fossa (oder Levante) und der Arenal.

Regionale Lage:

Kontaktformular