• +49 172 6666014
  • Diese E-Mail-Adresse ist vor Spambots geschützt! Zur Anzeige muss JavaScript eingeschaltet sein!
Was suchen Sie?
Kaufpreis
×
Grundstücksfläche
×

Exquisite, moderne Villa mit offenem Wohnkonzept in Santa Ponsa auf Mallorca

07180 Santa Ponsa Spanien Mallorca
REF.NR: 7150-IP2-10649
MerkenZurück Drucken

Objektinformationen

Kaufpreis:
4.300.000,00 €
Käuferprovision:
Provisionsfrei für den Käufer
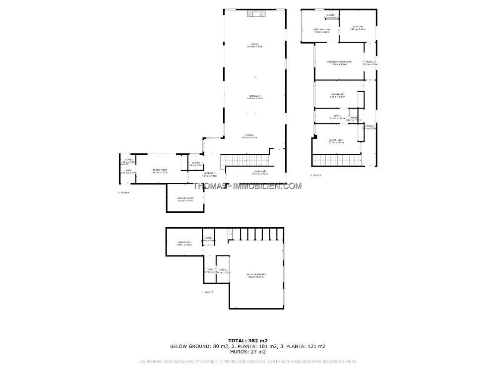
Wohnfläche ca.:
522,00 m²
Grundstück:
1.138,00 m²
Schlafzimmer:
4
Badezimmer:
3
Referenznummer
7150-IP2-10649
Swimmingpool
Neubau


Objektbeschreibung

Exquisite Moderne Villa mit offenem Wohnkonzept in Santa Ponsa.
Diese Villa bietet eine erstklassige Gelegenheit, eine geräumige und elegant gestaltete Residenz in der begehrten Küstenstadt Santa Ponsa, Calvià, zu erwerben. Auf einem großzügigen Grundstück von 1138 m² mit einer beeindruckenden bebauten Fläche von 522 m² gelegen. Fertiggestellt nach den höchsten Qualitätsstandards, ist dieses Haus bereit für ein sofortiges und anspruchsvolles Wohnen.
Das Innere zeichnet sich durch einen hellen, offenen Wohnbereich aus, der ideal für das moderne Familienleben und Unterhaltung ist. Das Wohnzimmer, der Essbereich und die Küche fließen nahtlos ineinander und schaffen einen großzügigen sozialen Mittelpunkt. Dieser Bereich im Erdgeschoss profitiert von einem schönen, intuitiven Übergang zum privaten Garten, der das Indoor-Outdoor-Wohnerlebnis maximiert. Die Villa bietet vier geräumige Schlafzimmer, darunter eine Master-Suite mit einem luxuriösen en-suite Badezimmer und einem eigenen Ankleidezimmer. Insgesamt gibt es drei voll ausgestattete Badezimmer, ergänzt durch ein praktisches Gäste-WC.
Die Villa ist für Komfort und Bequemlichkeit konzipiert und bietet eine Vielzahl von Premium-Features. Die Klimakontrolle wird durch eine Klimaanlage im gesamten Haus gewährleistet, ergänzt durch einen schönen Kamin für gemütliche Winterabende. Die Funktionalität wird durch ein separates Büro, einen geräumigen Hauswirtschaftsraum und reichlich Stauraum sichergestellt. Die Außenanlagen beherbergen einen schönen privaten Außenpool, und die Praktikabilität wird durch eine Doppelgarage gewährleistet.
Über die Lage: Santa Ponsa, Calvià
Santa Ponsa, gelegen in der renommierten Gemeinde Calvià, ist eines der etabliertesten und begehrtesten Wohngebiete Mallorcas. Am Fuße der majestätischen Serra de Tramuntana gelegen, bietet die Stadt eine perfekte Mischung aus lebhaftem Küstencharme und abgeschiedener Luxuslebensweise. Bekannt für seine schönen Strände, exzellente Infrastruktur und die Nähe zu glamourösen Yachthäfen, bietet es eine hervorragende Lebensqualität für sowohl ganzjährige Bewohner als auch Ferienhausbesitzer, die eine Luxusimmobilie auf Mallorca suchen.
Die Gegend ist außergewöhnlich gut ausgestattet mit Annehmlichkeiten, die einen hohen Lebensstandard bieten. Für Familien bietet die Lage einfachen Zugang zu renommierten internationalen Schulen, darunter die Agora Portals International School und das King Richard III College.
Sport- und Freizeitmöglichkeiten sind reichlich vorhanden. Golfbegeisterte haben direkten Zugang zu erstklassigen Einrichtungen, darunter Golf Santa Ponsa I, II und III. Die nahegelegenen Yachthäfen Port Adriano und Puerto Portals bieten hervorragende Einrichtungen für Segeln und Wassersport, während die lokale Umgebung zahlreiche Tennisclubs, Fitnessstudios und schöne Küstenwege zum Radfahren und Wandern bietet. Diese Villa in Santa Ponsa zum Verkauf ist perfekt positioniert, um das Beste der Balearen zu genießen.
Haftungsausschluss - Die Informationen zu dieser Immobilie dienen ausschließlich allgemeinen Informationszwecken. Obwohl wir uns um Genauigkeit bemühen, werden einige Details von Dritten bereitgestellt. Wir übernehmen keine Garantie für die Richtigkeit oder Vollständigkeit dieser Informationen und haften nicht für etwaige Fehler. Wir empfehlen allen interessierten Parteien, sich unabhängig rechtlich beraten zu lassen und ihre eigenen Überprüfungen durchzuführen.

Regionale Lage:

Kontaktformular